首页
财务会计
医药卫生
金融经济
考公考编
外语考试
学历提升
职称考试
建筑工程
IT考试
其他
登录
财务会计
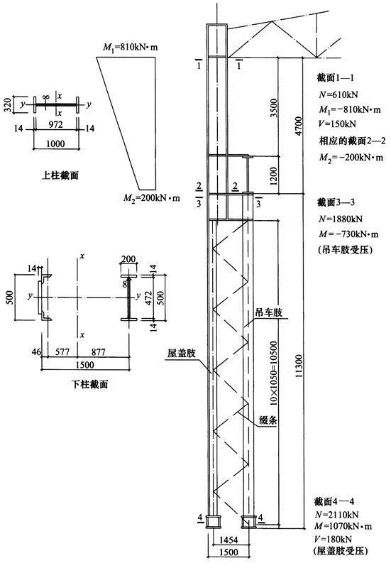
某单层钢结构厂房,钢材均为Q2358。边列单阶柱截面及内力见下图,上段柱为焊接工
某单层钢结构厂房,钢材均为Q2358。边列单阶柱截面及内力见下图,上段柱为焊接工
书海库
2019-12-17
9
问题
某单层钢结构厂房,钢材均为Q2358。边列单阶柱截面及内力见下图,上段柱为焊接工字形截面实腹柱,下段柱为不对称组合截面格构柱,所有板件均为火焰切割。柱上端与钢屋架形成刚接。无截面削弱。
假定,厂房平面布置如图时,试问,柱平面内计算长度系数与下列何项数值最为接近?( )提示:格构式下柱惯性矩取为I2=0.9×1202083cm4。
选项
A.上柱1.0、下柱1.0B.上柱3.52、下柱1.55C.上柱3.91、下柱1.55D.上柱3.91、下柱1.72
答案
B
解析
[img]/upload/tiku/213/8323802_1.jpg[/img]
转载请注明原文地址:https://ti.zuoweng.com/ti/pLYsKKKQ
相关试题推荐
下图是美国联邦政府机构示意图,下列表述正确的是:
混凝土面板宜采用单层双向钢筋,钢筋宜置于面板截面()。
某水闸项目经监理单位批准的施工进度网络图如下图所示(单位:天),合同约定:工期提
某水利水电工程项目的原施工进度网络计划(双代号)如下图所示。该工程总工期为18
混凝土有效工程量不扣除单体占用的空间体积小于()m3的钢筋和金属件,单体横截面面
钢筋接头配置在同一截面的允许百分率,机械连接接头在受拉区不宜超过()。
钢筋接头配置在同一截面的允许百分率,焊接接头在受弯构件的受拉区不超过()。
钢材在外力作用下开始产生塑性变形时的应力为()。
某企业A产品的在产品经核实为60件,每件完工程度为70%,每件产成品钢材的消耗定
20X8年2月3日,C公司要于当年5月转让其厂房内一机器设备,委托M评估机构评估
随机试题
(107-109题共用备选答案) A.可见心脏轻度增大,可闻及第四心音 B.
在流水施工过程中,为使施工段划分得合理,一般应遵循下列原则()。
根据我国《商业银行资本管理办法(试行)》,商业银行储备资本要求应由()来满足。
关于贷款抵押风险,下列说法不正确的有()。
综合协议交易平台接受交易用户的申报类型有()。 Ⅰ.意向申报 Ⅱ.单边报
在牙面形成获得性薄膜的过程中,下列哪一项是正确的()A.获得性薄膜可吸附细菌至牙面,但不具有选择性B.获得性薄膜在龈缘区较薄,牙尖区较厚C.获得
各类型休克的根本变化是A.代谢性酸中毒B.脉搏快C.尿量少D.组织灌注不足E.低血压
鉴定维生素C营养状况时,能反映组织中贮备水平的较好生化指标为( )A.血浆维生素C含量B.白细胞维生素C含量C.24小时尿维生素C排出量D.负荷试验4小
近日,工商执法人员在检查中发现某团伙成立的“医学研究机构”,每月从外地请一帮“专家”,大做一通广告,5月是“糖尿病专科”,6月就变成“肾病专科”了。检查中...
以下关于级别管辖说法正确的是:() a.海事海商案件由中级人民法院管辖 b.著作权民事纠纷案件由中级人民法院和经过最高人民法院授权的基层人民法院管...