首页
财务会计
医药卫生
金融经济
考公考编
外语考试
学历提升
职称考试
建筑工程
IT考试
其他
登录
财务会计
某单跨仓库,如图所示。跨度15m,开间6m,共6个开间,属刚弹性方案。窗高3.6
某单跨仓库,如图所示。跨度15m,开间6m,共6个开间,属刚弹性方案。窗高3.6
恬恬
2019-12-17
6
问题
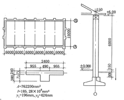
某单跨仓库,如图所示。跨度15m,开间6m,共6个开间,属刚弹性方案。窗高3.6m,窗间墙宽2.4m,壁柱和墙厚见题图。檐口标高+6.0m。砖砌体用MU10砖,M5混合砂浆。左柱的柱底承受的N=340kN。承受的弯矩:左风时,M左=26kN·m;右风时,M右=35kN·m。
墙底截面破坏的受弯及受剪承载力与下列( )组数据最为接近。
选项
A..1.82kN·m;21.5kNB..1.82kN·m;19.74kNC..1.57kN·m;19.74kND..1.21kN·m;13.34kN
答案
B
解析
[img]/upload/tiku/214/6911288_1.gif[/img]
转载请注明原文地址:https://ti.zuoweng.com/ti/9u8sKKKQ
相关试题推荐
某单位拥有的一出租物业的原值为5000万元,年租金收入为770万元,则该单位应缴
理解商品的供给价格弹性系数的要点是()。
治疗幽门螺杆菌感染的一线方案,其典型组方中不包括的药物是
患者,男,24岁,诊断为右睾丸非精原细胞瘤术后,治疗方案为依托泊苷+顺铂+博来霉
患者,男,24岁,诊断为右睾丸非精原细胞瘤术后,治疗方案为依托泊苷+顺铂+博来霉
患者,男,24岁,诊断为右睾丸非精原细胞瘤术后,治疗方案为依托泊苷+顺铂+博来霉
影响给药方案的因素有
给药方案个体化方法包括
“将药物治疗的成本与所产生的效益归化为以货币为单位的数字,用以评估药物治疗方案的
第四次咨询:…………心理咨询师:我们上一次制定了咨询目标和方案,我要运用合理情绪
随机试题
工作岗位设计的基本方法包括()三类。 A.传统的方法研究技术 B.线图
对既往军旅生涯的不舍和留恋,对当下处境的不满和无奈,是部分军休干部的心理特征,社
收入支出模型说明总需求是如何决定国民收入水平的,它的假定条件是()。
女,9个月,因腹泻3天,每日排出水样便10-12次,伴呕吐,已无尿5小时。检查:
小组活动开始后,组员间有下面一段对话: 成员甲:“其实一直以来,我们的婚姻生
当用扒杆与多台卷扬机联合吊装大型设备时,要保证设备上各吊点受力大致均匀,避免设备
彩陶和( )代表着我国古代美术创造的第一次高峰,在技术上、造型上也为后来的青铜
日前,一位74岁空巢老人在市区贴出广告,“零租金求合住”,条件是陪自己聊天。“零
哪型肝炎病毒感染后,临床淤胆型肝炎常见 A甲型肝炎病毒B乙型肝炎病毒C丙型肝炎病毒D丁型肝炎病毒E戊型肝炎病毒
Ⅰ类地表水水域主要适用于()。A:源头水B:集中式生活饮用水地表水源地一级保护区C:国家级自然保护区D:珍稀水生生物栖息地