首页
财务会计
医药卫生
金融经济
考公考编
外语考试
学历提升
职称考试
建筑工程
IT考试
其他
登录
财务会计
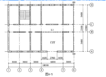
某多层砖砌体房屋,底层结构平面布置如图所示,外墙厚370mm,内墙厚240mm,
某多层砖砌体房屋,底层结构平面布置如图所示,外墙厚370mm,内墙厚240mm,
书海库
2019-12-17
2
问题
某多层砖砌体房屋,底层结构平面布置如图所示,外墙厚370mm,内墙厚240mm,轴线均居墙中。窗洞口尺寸均为1500mm×1500mm(宽×高),门洞口尺寸除注明外均为1000mm×2400mm(宽×高)。室内外高差0.5m,室外地面距基础顶0.7m。楼、屋面板采用现浇钢筋混凝土板,砌体施工质量控制等级为B级。
假定,本工程建筑抗震类别为乙类,抗震设防烈度为7度,设计基本地震加速度值为0.10g。墙体采用MU15级蒸压灰砂砖、M10级混合砂浆砌筑,砌体抗剪强度设计值为fv=0.12MPa。各层墙上下连续且洞口对齐。试问,房屋的层数n及总高度H的限值与下列何项选择最为接近?( )
选项
A.n=7,H=21mB.n=6,H=18mC.n=5,H=15mD.n=4,H=12m
答案
D
解析
根据《建筑抗震设计规范》(GB 50011—2010)表7.1.2可得,7度设防的普通砖房屋层数为7层,总高度限值为21m;乙类房屋的层数应减少一层且总高度降低3m。根据第7.1.2条第2款规定,横墙较少的房屋,房屋的层数应比表7.1.2的规定减少一层且高度降低3m。根据第7.1.2条第4款规定,蒸压灰砂砖砌体房屋,当砌体的抗剪强度仅为普通黏土砖砌体的70%时,房屋的层数应比表7.1.2的规定减少一层且高度降低3m。横墙较少的计算式为:3×6×5.4/18×12.9=41.86%>40%。由此可知,D项最接近。
转载请注明原文地址:https://ti.zuoweng.com/ti/N8t9KKKQ
相关试题推荐
架空敷设的支架按其支撑结构高度不同一般可分为()。
用于砌筑结构的石材强度等级应符合设计要求,设计无要求时不得小于()。
下列地铁基坑围护结构中,可回收部分或全部材料的有()。
下列地铁基坑围护结构中,刚度大的有()。
关于场区施工平面控制网测设规定的说法,正确的有()。
垃圾卫生填埋场的填埋区工程的结构物主要有()。
关于喷锚暗挖法施工隧道防水结构设计与施工的说法,正确的有()。
当地层条件差、断面特大时,隧道一般设计成多跨结构,跨与跨之间有梁、柱连接,可采用
按平面布置形式分类,基坑内被动区加固形式主要有()和满堂加固。
基坑周围地层移动主要是由于围护结构的水平位移和坑底土体隆起造成的。主要表现有(
随机试题
关于履约担保的说法,正确的有( )。 A、履约担保是为保证正确、合理使用发包人
土地权属争议处理的程序是( )。 ①申请 ②调解 ③处理 ④受理 ⑤调查
双代号网络计划中,虚箭线的主要作用是()。 A.连接、分解、断路 B.联系、
下列关于胸腺的说法,不正确的是 A.胸腺是淋巴细胞分化发育为成熟T细胞的场所
公路水运工程试验检测机构等级评定现场评审,对仪器设备管理状况检查包括()。
中国第一家全国性的国有股份制商业银行是( )。
从网民到公民的网络问政,是我国正在行走的一条道路。对许多社会事件的看法,网民有了
哪类疫苗由政府免费向公民提供( )A.第一类B.第二类C.第三类D.第四类E.全部
出卖人应当按照约定的地点交付标的物,当事人没有约定或约定不明确的,下列各项中正确的认定方式有()A.标的物需要运输的,出卖人应当将标的物交付给第一承运人B.标
无论寿险再保险合同或非寿险再保险合同,均为( )。 A.补偿性合同 B.给付性合同 C.定额性合同 D.定值性合同