首页
财务会计
医药卫生
金融经济
考公考编
外语考试
学历提升
职称考试
建筑工程
IT考试
其他
登录
财务会计
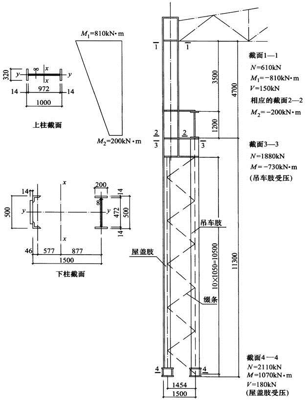
某单层钢结构厂房,钢材均为Q2358。边列单阶柱截面及内力见图3-1,上段柱为焊
某单层钢结构厂房,钢材均为Q2358。边列单阶柱截面及内力见图3-1,上段柱为焊
免费考试题库
2019-12-17
6
问题
某单层钢结构厂房,钢材均为Q2358。边列单阶柱截面及内力见图3-1,上段柱为焊接工字形截面实腹柱,下段柱为不对称组合截面格构柱,所有板件均为火焰切割。柱上端与钢屋架形成刚接。无截面削弱。
假定,下柱在弯矩作用平面内的计算长度系数为2,由换算长细比确定:φx=0.916, N'EX=34476kN。试问,以应力形式表达的平面内稳定性计算最大值(N/mm2),与下列何项数值最为接近?( )提示:①βmx=1;②按全截面有效考虑。
选项
A.125B.143C.156D.183
答案
C
解析
[img]/upload/tiku/213/9404282_1.jpg[/img]
转载请注明原文地址:https://ti.zuoweng.com/ti/R6q9KKKQ
相关试题推荐
水平截面积300㎡以内的墩台,分块浇筑混凝土时,分块数量不得超过()块。
墩台混凝土分块浇筑时,墩台水平截面积在200㎡内分块不得超过()块。
根据建质[2010]111号文件规定,某钢结构安装工程发生整体倾覆事故,正在施工
某一结构构件截面尺寸不足,影响承载力,但按实际情况进行复核验算后仍能满足设计要求
某项目业主作为采购方与钢材生产厂家签订了物资采购合同,合同中规定供货方负责将钢材
某钢结构安装工程发生整体倾覆事故,正在施工的工人3人死亡、15人重伤。按照事故造
某钢结构安装工程发生整体倾覆事故,正在施工的工人3人死亡,15人重伤。按照事故造
某工程进行检验批验收付时,发现某框架梁截面尺寸与原设计图纸尺寸不符,但经原设计单
某安装工程公司承包了一套燃油加热炉安装工程,包括加热炉、燃油供应系统、钢结构、工
钢结构制作和安装单位应按规定分别进行高强度螺栓连接摩擦面的()试验,其结果应符合
随机试题
电力设施与其他设施相互妨碍的处理,实行()原则。 A、适当自卫 B、在先保护
关于建设项目经济分析与财务分析的说法,正确的有( )。
预缩砂浆配置时,掺入水泥重量1/1000的(),以提高砂浆的流动性。
患者,男性,68岁。餐后上腹部胀满半月余,间断呕吐宿食数次,体重下降10kg。上
下列选项中,有关中国山水画的表述,不正确的一项是() A.山水画是以自然风景
巴斯把婴儿气质分为()。 (A)活动性(B)情绪性 (C)冲动性(D)
甲状腺性甲亢中最多见的是A:多结节性毒性甲状腺肿B:弥漫性甲状腺肿甲状腺功能亢进症(Craves病)C:毒性腺瘤D:甲状腺癌E:碘甲亢
下列选项中,属于一日服用一次的抗高血压药有A.依那普利B.氨氯地平C.氯沙坦钾D.非洛地平E.尼卡地平
煤矿安全监察部门通常要对高瓦斯矿井和突出矿井进行监察,检查矿井是否按照规定进行瓦斯抽放,是否安装监测系统等,这种监察方式属于( )。A.日常监察B.重点监
共用题干 2012年,某航空公司准备在其商用零售部门安装公司有史以来最大的计算机系统。这个新计算机系统的安装,将对其零部件部门的700名雇员产生直接的影...