首页
财务会计
医药卫生
金融经济
考公考编
外语考试
学历提升
职称考试
建筑工程
IT考试
其他
登录
考公考编
案例三 背景资料 某新建工程,建筑面积 15000 ㎡,地下两层,地上五层,
案例三 背景资料 某新建工程,建筑面积 15000 ㎡,地下两层,地上五层,
Loveyou
2020-05-20
5
问题
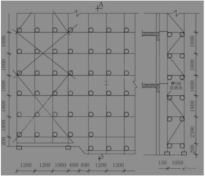
案例三背景资料某新建工程,建筑面积 15000 ㎡,地下两层,地上五层,钢筋混凝土框架结构采用 800mm 厚钢筋混凝土筏板基础,建筑总高 20m。建设单位与某施工总承包单位签订了总承包合同。施工总承包单位将建设工程的基坑工程分包给了建设单位指定的专业分包单位。施工总承包单位项目经理部成立了安全生成领导小组,并配备了 3 名土建类专业安全员,项目经理部对现场的施工安全危险源进行了分辨识别。编制了项目现场防汛应急救援预案,按规定履行了审批手续,并要求专业分包单位按照应急救援预案进行一次应急演练。专业分包单位以没有配备相应救援器材和难以现场演练为由拒绝。总承包单位要求专业分包单位根据国家和相关规定进行整改。外装修施工时,施工单位搭设了扣件式钢管脚手架(如图)。架体搭设完成后进行了验收检查,并提出了整改意见。
项目经理组织参见各方人员进行高出作业专项安全检查。检查内容包括安全帽、安全网、安全带、悬挑式物料平台等。监理工程师认为检查项目不全面,要求按照《建筑施工安全检查标准》(JGJ59-2011)予以补充。
选项
问题:1、本工程至少应配置 3 名专职安全员,根据《住房和城乡建设部关于印发建筑施工企业主要负责人、项目经理部配置的》专职安全员是否妥当?并说明理由。2、对施工总承包单位编制的防汛应急救援预案,专业承包单位应该如何执行?3、支出背景资料中脚手架搭设的错误之处。4、按照《建筑施工安全检查标准》(JGJ59-2011),现场高处作业检查的项目还应补充哪些?
答案
解析
1、本工程至少配备2名专职安全员。专职安全员的配置妥当。依据相关规定,建筑面积在1-5 万㎡之间的应配备2名专职安全员,本工程建筑面积15000 ㎡,理应配备2名本工程配备了3名,因此妥当。2、专业分包单位应:(1)成立防汛应急领导小组并明确各自职责和分工;(2)按应急专业队伍的职责要求,成立应急队伍、并对应急装备进行学习使用;(3)进行应急人员的专项培训;(4)配合总包单位做好应防汛急救援预案的演练;3、不妥一:横向扫地杆应在纵向扫地杆下部;不妥二:当立杆的基础不在同一高度上时,必须将高出的纵向扫地杆向低处延长两跨与立杆固定,本图中,高出纵向扫地杆只向低处延长了一跨。不妥三:脚手架的步距一般不超过 1.8m,图示最低处脚手架的最下一步步距为 2.3m。不妥四:该脚手架宜采用刚性连墙件与建筑物可靠连接,亦可采用钢筋与顶撑配合使用的附墙方式,严禁使用只有钢筋的柔性连墙件不妥五:立杆接长除顶层顶部可采用搭接外,其余各层各步接头必须采用对接扣件连接。4、高处作业还有:临边防护、洞口防护、通道口防护、攀登作业、悬空作业、移动式操作平台。
转载请注明原文地址:https://ti.zuoweng.com/ti/XIidKKKQ
相关试题推荐
(11-15题共用题干) 男性患者,58岁,电脑工程师。发现血压升高6年,血脂
(10-11题共用题干) 男性矿工,井下作业时发生塌方砸伤背部,当即倒于地上,
建筑业总产值包括( )。 A.建筑工程产值 B.设备安装工程产值
房屋施工面积指报告期内施工的全部房屋建筑面积,包括( )。 A.本期新开
建筑业是指建筑安装工程作业,包括( )。 A.建筑 B.安装
对年主营业务收入2000万元及以上的非国有工业法人企业收集资料的方法除全面调查外
一定地块内,房地产项目容积率计算公式是( )。 A.地上总建筑面积计算值/
工程结算利润的计算公式为( )。 A.工程结算利润=工程结算收入-工程结算
对于求助者的问题形成初步诊断所依据的资料来源包括( )。 A.临床观察
收集求助者资料时所围绕的7个问题中,最重要的是( ) A.who B
随机试题
税收的职能包括( )。 A.财政职能 B.经济职能 C.保障职能 D.
有关劳动法律关系与劳动关系的联系的表述正确的有( )。 A、劳动关系是劳动法律
某房地产经纪公司接受二手住宅楼销售委托,由经纪人张某到现场进行勘察得知:该住宅楼
沙门菌属的Vi抗原属于
收文机关收到这份公文后,正确的做法有()
一家电子产品的生产企业,为改进企业的质量检验工作,发动检验人员进行研讨,对质量检
著作权资产的法律特征包括( )。A.效益性B.地域性C.时效性D.关联性E.价值性
关于急性乳腺炎的预防,下列哪项是错误的A.避免乳汁淤积B.使用抗生素C.防止乳头损伤D.正确的哺乳方法E.经常清洗乳头
足太阳原穴为A.京骨B.飞扬C.申脉D.足通谷
某中年男患者因心脏病发作被送到急诊室,症状及检查结果均明确提示心肌梗死。患者很清醒,但拒绝住院,坚持要回家。此时医生应该A.尊重患者自主权,自己无任何责任,