首页
财务会计
医药卫生
金融经济
考公考编
外语考试
学历提升
职称考试
建筑工程
IT考试
其他
登录
财务会计
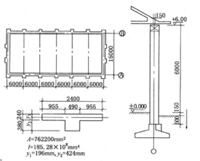
某单跨仓库,如图所示。跨度15m,开间6m,共6个开间,属刚弹性方案。窗高3.6
某单跨仓库,如图所示。跨度15m,开间6m,共6个开间,属刚弹性方案。窗高3.6
昕玥
2019-12-17
14
问题
某单跨仓库,如图所示。跨度15m,开间6m,共6个开间,属刚弹性方案。窗高3.6m,窗间墙宽2.4m,壁柱和墙厚见题图。檐口标高+6.0m。砖砌体用MU10砖,M5混合砂浆。左柱的柱底承受的N=340kN。承受的弯矩:左风时,M左=26kN·m;右风时,M右=35kN·m。
假定如图所示,三层Ⅰ—Ⅰ截面的外纵墙内力以及该层窗间墙的β值和计算截面面积如下:荷载产生的轴向力设计值N=268.4kN,弯矩设计值M=2.35kN·m,β=14,面积A=0.432m2。验算Ⅰ—Ⅰ截面受压承载力关系式中右端项(φfA)的数值最接近于( )kN。
选项
A..329.5B..335.5C..362.6D..388.1
答案
A
解析
[img]/upload/tiku/214/6911341_1.gif[/img]
转载请注明原文地址:https://ti.zuoweng.com/ti/a38sKKKQ
相关试题推荐
某房地产开发项目拟有三个投资方案,若对这三个方案的经济合理性进行比较,则比较的基
理解商品的供给价格弹性系数的要点是()。
患者,男,24岁,诊断为右睾丸非精原细胞瘤术后,治疗方案为依托泊苷+顺铂+博来霉
患者,男,24岁,诊断为右睾丸非精原细胞瘤术后,治疗方案为依托泊苷+顺铂+博来霉
患者,男,24岁,诊断为右睾丸非精原细胞瘤术后,治疗方案为依托泊苷+顺铂+博来霉
患者,男,24岁,诊断为右睾丸非精原细胞瘤术后,治疗方案为依托泊苷+顺铂+博来霉
患者,男,24岁,诊断为右睾丸非精原细胞瘤术后,治疗方案为依托泊苷+顺铂+博来霉
给药方案个体化方法包括
拟定给药方案的设计时,要调整剂量主要调节的参数是
第四次咨询:…………心理咨询师:我们上一次制定了咨询目标和方案,我要运用合理情绪
随机试题
单位从事内幕交易的,还应当对直接负责的主管人员和其他直接责任人员给予警告,并处以
中成药购进验收记录,保存期不少于 A.1年 B.2年 C.3年 D.4年
分析歌曲《小鸟,小鸟》。 要求: (1)写出调式调性。 (2)写出歌曲
甲房地产经纪公司(以下简称甲公司)从事新建商品房代理销售业务,2004年10月,
投资的一般特性有() A.预付性B.收益性 C.长斯性D.风险
关于人力资源费用,下列说法正确的是()。A、法律咨询费属于人工成本B、人工成本就是人力资源管理费用C、工资、保险和培训费用属于人工成本
高中化学课程学习的毕业要求是学生至少修满()学分。A.4B.6C.8D.10
氨基苷类抗生素中耳、肾毒性最强的抗生素是A:链霉素B:庆大霉素C:妥布霉素D:新霉素E:卡那霉素
影响施工质量的五大因素是指人、材料、机械及( )。A、方法与设计方案B、投资额与合同工期C、投资额与环境D、方法与环境
赵某、钱某、孙某投资设立A有限责任公司。其中赵某、钱某均以50万元现金出资,孙某以办公楼作价100万元出资。后因为市场因素导致该房产仅值80万元。公司债权...