首页
财务会计
医药卫生
金融经济
考公考编
外语考试
学历提升
职称考试
建筑工程
IT考试
其他
登录
财务会计
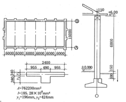
某单跨仓库,如图所示。跨度15m,开间6m,共6个开间,属刚弹性方案。窗高3.6
某单跨仓库,如图所示。跨度15m,开间6m,共6个开间,属刚弹性方案。窗高3.6
昕玥
2019-12-17
6
问题
某单跨仓库,如图所示。跨度15m,开间6m,共6个开间,属刚弹性方案。窗高3.6m,窗间墙宽2.4m,壁柱和墙厚见题图。檐口标高+6.0m。砖砌体用MU10砖,M5混合砂浆。左柱的柱底承受的N=340kN。承受的弯矩:左风时,M左=26kN·m;右风时,M右=35kN·m。
墙柱的计算长度与下列( )项数值最为接近。
选项
A..7.98mB..7.50mC..7.00mD..6.65m
答案
A
解析
根据《砌体结构设计规范》(GB 50003—2001)第5.1.3条第1款,排架柱的下端支点位置取到基础顶面,则H=6.65m;查表5.1.3,单跨刚弹性方案的单层房,计算高度H0=1.2H=1.2×6.65=7.98m。
转载请注明原文地址:https://ti.zuoweng.com/ti/get9KKKQ
相关试题推荐
开工前编制工程测量方案应根据()。
城市热力管道在实施焊接前,应根据焊接工艺试验结果编写焊接工艺方案,包括以下主要内
进行浅埋暗挖施工方案的选择应考虑的因素有()。
沟槽开挖前编制的沟槽开挖方案应包含的主要内容有()。
现浇(预应力)钢筋混凝土水池的施工方案应包括结构形式、材料与配比、施工工艺及流程
沉井刃脚的垫层采用砂垫层上铺垫木方案时,以下说法中错误的是()。
基坑开挖方案应根据()确定。
政府质量监督机构按照监督方案应对工程项目全过程施工的情况进行不定期检查,其中在(
施工单位应在完成施工测量方案、红线桩校核成果、水准点引测成果及施工过程的各种测量
住房和城乡建设部确认建筑信息化的最佳解决方案是以()技术为核心并做为中国未来建筑
随机试题
教师积极适应时代、社会的要求,提高自身的心理健康水平,掌握基本的心理卫生常识,在
《建筑工程施工发包与承包计价管理规定》规定,工程竣工验收合格,承发包双方应按照(
()适用于沥青表面处治、沥青贯入工路面、冷拌沥青混合料路面,修补裂缝,喷洒透层
下列选项中不能体现矛盾观点的是:
患者,女性,54岁。患“肝硬化”6年,现呕血600ml,心慌乏力,脉搏细速。体检
某实行监理的工程,建设单位与总承包单位按《建设工程施工合同(示范文本)》签订了施
不易变色的是
依据《安全生产法》,安全生产中介服务机构的特征有()。A.客观性B.独立性C.公益性D.服务性E.专业性
One-RoomSchools One-roomschoolsarepartoftheheritageoftheUnitedSta...
选择标杆职位可以参考的标准包括()。A:职位的代表性B:职位的关键程度C:职位内容变化的频率D:职位任职者的绩效E:职位的特殊性