首页
财务会计
医药卫生
金融经济
考公考编
外语考试
学历提升
职称考试
建筑工程
IT考试
其他
登录
财务会计
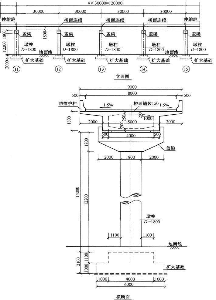
某城市快速路上的一座立交匝道桥,其中一段为四孔各30m的简支梁桥,其总体布置如图
某城市快速路上的一座立交匝道桥,其中一段为四孔各30m的简支梁桥,其总体布置如图
天天题库
2019-12-17
6
问题
某城市快速路上的一座立交匝道桥,其中一段为四孔各30m的简支梁桥,其总体布置如图7-1所示。单向双车道,桥梁总宽9.0m,其中行车道净宽度为8.0m。上部结构采用预应力混凝土箱梁(桥面连续),桥墩由扩大基础上的钢筋混凝土圆柱墩身及带悬臂的盖梁组成。梁体混凝土线膨胀系数取α=0.00001。设计荷载:城-A级。
假定,计算该桥箱梁悬臂板的内力时,主梁的结构基频f=4.5Hz。试问,作用于悬臂板上的汽车荷载作用的冲击系数的μ值应取用下列何项数值?( )
选项
A.0.05B.0.25C.0.30D.0.45
答案
C
解析
根据《公路桥涵设计通用规范》(JTG D60—2004)第4.3.2条第6款规定,箱梁悬臂板上的冲击系数的μ值应采用0.3。
转载请注明原文地址:https://ti.zuoweng.com/ti/qMt9KKKQ
相关试题推荐
城市建设工程档案应分专业按单位工程组卷,分为()和竣工验收文件分类组卷
城市热力管道焊接质量检验有()。
城市热力管道对口质量应检验()。
根据市政公用工程注册建造师执业工程范围,城市公共广场工程包括()工程。
城市建设工程档案应分专业按()组卷。
城市燃气工程不包括()的建设与维修。
下列关于城市桥梁施工过程中分项工程质量控制的说法,错误的是()。
当施工现场日平均气温连续5d稳定低于()时,严禁进行城市主干路、快速路热拌沥青
根据GB50092-96规定,城市道路沥青混合料路面抗滑表层还应检查()。
我国城市燃气管道按输气压力来分,高压B燃气管道压力为()。
随机试题
已知年产20万吨的某工业产品项目的工艺生产装置为30000万元,现拟建年产
在公路、铁道桥上敷设电缆要采取的措施有()。
学校订阅了335本英语字典发放给3个年级共10个班级,要求每个年级至少发100本
关于证券市场禁人,以下说法中错误的是()。 A.被采取措施的,其在所在机构的
“DNA是主要的遗传物质”是人民教育出版社高中《生物》必修2第三章第一节的内容。 请依据所给的部分教科书内容,设计一份能体现生物新课程理念的教学方案(1...
脉之有根表现为A.不快不慢B.柔和有力C.尺脉有力D.来盛去衰
挪用公款给他人使用的,使用人在下列何种情况下,构成挪用公款罪的共犯?( )A.知道是挪用的公款仍然使用B.指使挪用人挪用公款C.应当知道其使用的是挪用款
共用题干 美国食品药品监督管理局(FDA)根据药物对胎儿的危害将妊娠用药分为A、B、C、D、X五个级别,并要求制药企业应在药品说明书上标明等级。A~X级...
事故调查应当坚持实事求是、尊重科学的原则,查明事故发生的原因,认定事故的性质和责任,事故性质和责任认定的主要依据是( )。A.对事故单位主要负责人的问询情况
根据举报,某市税务局的稽查局对该市金童服装公司进行税务稽查。经检查发现,该公司采取隐瞒销售收入的方式偷逃税款20万元。市税务局的稽查局向该公司送达《税务行...