首页
财务会计
医药卫生
金融经济
考公考编
外语考试
学历提升
职称考试
建筑工程
IT考试
其他
登录
考公考编
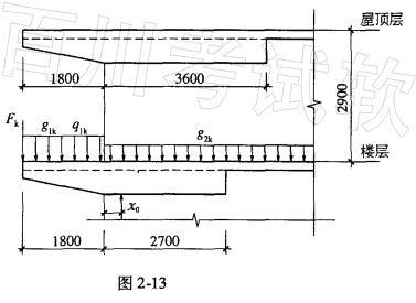
某钢筋混凝土挑梁埋置于T形截面的砌体墙中,尺寸如图2-13所示,墙内无构造柱。挑
某钢筋混凝土挑梁埋置于T形截面的砌体墙中,尺寸如图2-13所示,墙内无构造柱。挑
tikufree
2020-05-20
13
问题
某钢筋混凝土挑梁埋置于T形截面的砌体墙中,尺寸如图2-13所示,墙内无构造柱。挑梁根部截面尺寸b×hb= 240mm×400mm,采用C25混凝土。挑梁上、下墙厚均为 240mm,采用MU10级烧结普通砖,M7.5级混合砂浆砌筑。楼板传给挑梁的荷载标准值:挑梁端集中恒荷载为 Fk= 10. 0kN,均布恒荷载 g1k 二 g2k =10. 0kN/m,均布活荷载 g1k =9.0kN/m,挑梁墙内部分自重为2.4kN/m,挑出部分自重简化为1.8kN/m。施工质量控制等级为B级,结构安全等级为二级。砖墙容重γ砖=20kN/m3,永久荷载的分项系数取γG= 1. 2,活荷载的分项系数取γQ=1.4,荷载效应最不利组合由活荷载控制。
楼层挑梁下砌体的局部受压承载力验算时,试问,公式
的左右端项,与下列何项数值最为接近?提示:砌体的抗压强度设计值不考虑强度调整系数γa的影响。(A) 120 (C) 120
选项
答案
A
解析
答案:(A)解答:l=1800mm根据《砌体规范》第7.4.4条:R=1.2×10+1.2×(10+1.8)×1.8+1.4×9×1.8=60.17kNNl=2R=2×60.17=120.34kN,η=0.7,γ=1.5,f=1.69N/mm2Al=1.2bhb=1.2×240×400=115200mm2ηγfAl=0.7×1.5×1.69×115200=204.4kN
转载请注明原文地址:https://ti.zuoweng.com/ti/5pnEKKKQ
相关试题推荐
电路如图7-6所示,A点的电位为()V。
平面图形上A、B两点的速度如图4-54所示,则其角速度为()。
如图5-29所示梁的受载情况对于中央截面C为反对称。FSC和MC分别表示中央截面
三铰拱上作用有大小相等、转向相反的两个力偶,其力偶矩大小为如图4-12所示。略去
如图5-11所示桁架,在节点C处沿水平方向受力F作用。各杆的抗拉刚度相等。若结点
如图7-51所示的各电路能正常放大交流信号的是()。
如图6-26所示,四孔口,其流量系数由大到小的排列为()。
突然扩大管如图6-23所示,放大前后管路直径分别为100mm和200mm,放大后
某逻辑电路如图7-62所示,若输入A=1,B=O,则输出F1和F2分别为()。
如图6-7所示,1、2两种液体,上下分层,测压管1、2中的液面关系是()。
随机试题
减压阀用于给水分区和用于消防系统时,应采用的减压阀形式为()。
根据《导游人员管理条例》第2条规定,下列属于导游人员工作范围的是()。
下列喷锚暗挖掘进方式中罗结构防水效果差的是()。
孕妇,24岁,停经52天,尿HCG(+),诊为早孕,其末次月经1999年5月13
基因表达调控主要发生在 A.复制水平B.转录水平 C.转录后加工水平D.
法律主要通过()A.都是调节人们行为的规范B.行为者道德良心引导人们自觉遵守社会的道德规范和准则C.国家机器的强制性力量来制约人们的社会行为D.两
1915年9月,陈独秀在上海创办《青年杂志》。他在该刊发刊词中宣称,“盖改造青年之思想,辅导青年之修养,为本志之天职。批评时政,非其旨也。”此时陈独秀把...
一项工程如果交给甲、乙两队共同施工,8天能完成;如果交给甲、丙两队共同施工,10天能完成;如果交给甲、丁两队共同施工,15天能完成;如果交给乙、丙、丁三队...
一般资料:求助者,男性,43岁,公务员。 案例介绍:求助者的女儿今年15岁,两个月前参加中考,成绩很不理想,该求助者一年前就因女儿的学习问题来咨询过。...
下列规范性文件中,效力等级最低的是()。A.国务院发布的《企业财务会计报告条例》B.全国人民代表大会通过的《中华人民共和国民事诉讼法》C.中国人民银行