首页
财务会计
医药卫生
金融经济
考公考编
外语考试
学历提升
职称考试
建筑工程
IT考试
其他
登录
财务会计
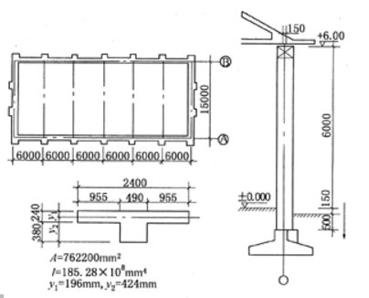
某单跨仓库,如图所示。跨度15m,开间6m,共6个开间,属刚弹性方案。窗高3.6
某单跨仓库,如图所示。跨度15m,开间6m,共6个开间,属刚弹性方案。窗高3.6
免费考试题库
2019-12-17
3
问题
某单跨仓库,如图所示。跨度15m,开间6m,共6个开间,属刚弹性方案。窗高3.6m,窗间墙宽2.4m,壁柱和墙厚见题图。檐口标高+6.0m。砖砌体用MU10砖,M5混合砂浆。左柱的柱底承受的N=340kN。承受的弯矩:左风时,M左=26kN·m;右风时,M右=35kN·m。
该墙的墙底截面的弯矩设计值及剪力设计值与下列( )项数值最为接近。
选项
A..1.4kN·m;1.4kNB..1.4kN·m;4.2kNC..4.2kN·m;1.4kND..4.2kN·m;2.8kN
答案
A
解析
取1m宽的墙计算,并忽略自重产生的轴力影响,则M=1/2×0.7×22=1.4kN·m;V=0.7×2=1.4kN。
转载请注明原文地址:https://ti.zuoweng.com/ti/Aet9KKKQ
相关试题推荐
开工前编制工程测量方案应根据()。
城市热力管道在实施焊接前,应根据焊接工艺试验结果编写焊接工艺方案,包括以下主要内
进行浅埋暗挖施工方案的选择应考虑的因素有()。
沟槽开挖前编制的沟槽开挖方案应包含的主要内容有()。
现浇(预应力)钢筋混凝土水池的施工方案应包括结构形式、材料与配比、施工工艺及流程
下列选项中属于现浇(预应力)钢筋混凝土水池施工方案主要内容的有()。
基坑开挖方案应根据()确定。
施工单位应在完成施工测量方案、红线桩校核成果、水准点引测成果及施工过程的各种测量
住房和城乡建设部确认建筑信息化的最佳解决方案是以()技术为核心并做为中国未来建筑
根据合同实施偏差分析的结果,承包商应采取相应的调整措施,其中变更技术方案,采用新
随机试题
在意外伤害保险中,当一次意外伤害造成被保险人身体若干部位残疾,且各部位残疾程度百
“红后定律”由美国进化生物学家利?范?瓦伦于1973年提出,此理论源于文学作品《
下列不是影响概念转变的因素的是( )
大肠癌的癌前病变有
关于医德规范,下列提法中错误的是 A调节医务人员人际关系的出发点和根本准则
以下属于中国基金业协会制定的法规条例的是()A、《合伙企业法》B、《私募投资基金募集行为管理办法》C、《公司法》D、《证券法》
下列选项中属于行为取向的课程目标的功能的是()A.导向B.控制C.激励D.评价E.示范
下列关于自然灾害说法错误的是()。A.地震时人最先感觉到上下震动B.泥石流是山区常见的自然灾害C.在我国台风一般多发生在夏季D.南方一些地区出现雨凇的原
下列关于直接重衬的说法中,正确的是A.在需要重衬的组织面均匀磨去2mm,形成粗糙面B.在不需要重衬的磨光面上涂上凡士林或蜡C.将调和好的室温固化材料在面团期
某市安全生产监督管理局对该市某企业劳动防护用品的日常管理工作开展了专项安全监督检查,发现该企业劳动防护用品的管理有以下做法,其中错误的是()。A.为职工免