首页
财务会计
医药卫生
金融经济
考公考编
外语考试
学历提升
职称考试
建筑工程
IT考试
其他
登录
考公考编
某商业楼为五层框架结构,设一层地下室,基础拟采用承台下桩基,柱A截面尺寸为800
某商业楼为五层框架结构,设一层地下室,基础拟采用承台下桩基,柱A截面尺寸为800
昕玥
2020-05-20
0
问题
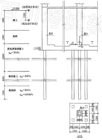
某商业楼为五层框架结构,设一层地下室,基础拟采用承台下桩基,柱A截面尺寸为800mmx800mm,预制方桩边长为350mm,桩长为27m,承台厚度为800mm,有效高度h取750mm,板厚为-600mm,承台及柱的混凝土强度等级均为C30 (f=1.43N/mm2),抗浮设计 水位+5.000,抗压设计水位+3.500。柱A下基础剖面及地质情况见下图。
地下室底板面积为1000m2,结构(包括底板)自重及压重之和为60000kN。试问,当仅考虑采用压重措施进行抗浮稳定验算时,为满足《建筑地基基础设计规范》GB 50007-2011的抗浮要求,还需增加的压重(kN)最小值与下列何项数值最为接近?提示:答案中0表示不需要另行增加压重。
选项
A 3000B 2000C 1000D 0
答案
A
解析
[img]/upload/tiku/133/297238_1.jpg[/img]
转载请注明原文地址:https://ti.zuoweng.com/ti/DMnEKKKQ
相关试题推荐
梁的弯矩图如图5-30所示,最大值在B截面,在梁的A、B、C、D四个截面中,剪
如图5-19所示,矩形截面,C为形心,阴影面积对zC轴的静矩为(SzC)A,其余
如图5-4所示,等截面直杆受轴向拉力F作用发生拉伸变形。已知横截面面积为A,以下
如图5-68所示四根压杆的材料、截面均相同,它们在纸面内失稳的先后次序为()。
受扭圆轴,若横截面上的扭矩T不变,而直径减小一半时,则该轴横截面上的最大切应力
若压杆在两个方向上的约束情况不同,且μy>μz。那么该压杆的合理截面应满足的条件
矩形截面简支梁梁中点受集中力F,如图5-38所示。若h=2b,分别采用图(a)、
长度和横截面面积均相同的两杆,一个为钢杆,另一个为铝杆,在相同的轴向拉力作用下,
悬臂梁AB由三根相同的矩形截面直杆胶合而成,如图5-35所示。材料的许可应力为例
由同一种材料组成的变截面杆的横截面面积分别为2A和A,受力如图5-7所示,弹性
随机试题
家庭与事业成长期的需求分析不包括()。 A.增加收入 B.风险保障 C.
下列关于常用电缆特性的说法中,错误的是()。
1.职业道德的社会作用直接表现在() (A)有利于调整职业利益关系,
工程监理单位勘察成果评估报告的内容不包括( )。
据《固体废物处理处置工程技术导则》(HJ2035-2013),关于垃圾填埋场
根据《建筑工程建筑面积计算规范》GB/T50353-2013规定,建筑物的建筑面积应按自然层外墙结构外围水平面积之和计算。以下说法正确的是()。A.建筑物高度为
患者,男性,54岁,转移性右下腹痛5h,伴恶心、呕吐、发热。最能提示该患者患有阑尾炎的体征是A.疼痛转移至麦氏点B.右下腹固定压痛C.腹胀明显D.肠鸣音减
属于病理性红细胞增高的原因是A:剧烈运动B:妊娠C:肺心病D:高原地区居民E:恐惧
急性炎症反应常见表现是A.瘙痒、皮损形态多样,丘疹边界不清B.红斑、丘疹、水疱C.色素沉着D.湿疹E.痤疮样皮疹
为了帮助老年人找到退休后的人生价值,社会工作者胡洋策划了一个老年人服务方案,其工作步骤为:认识该社区的老年人面临的问题—界定这些问题的性质与成因—探索可行...