首页
财务会计
医药卫生
金融经济
考公考编
外语考试
学历提升
职称考试
建筑工程
IT考试
其他
登录
财务会计
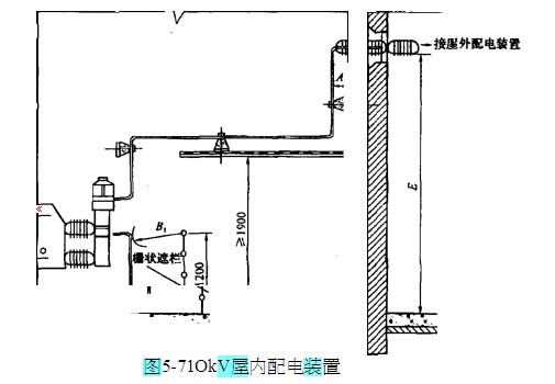
图5-7为1OkV屋内配电装置,安装地的海拔髙度不超过 1000m,请按最小电气
图5-7为1OkV屋内配电装置,安装地的海拔髙度不超过 1000m,请按最小电气
tikufree
2019-12-17
11
问题
图5-7为1OkV屋内配电装置,安装地的海拔髙度不超过 1000m,请按最小电气安全净距的要求,分别回答下列问题(以mm为单位):
图中所标示B1的下列数值,符合规范要求的是( )。
选项
A. 800mm; B. 825mm; C. 850mm; D. 875mm?
答案
D
解析
依据GB 50056-1992《3~IlOkV高压配电装置设计规范》第5.1. 3条。
转载请注明原文地址:https://ti.zuoweng.com/ti/UJM9KKKQ
相关试题推荐
铁心接地电流检测装置中钳形电流表具备(____)。
防误闭锁装置图纸资料的验收包括:()的核对验收。
()内需装设强排风装置,启动开关装设在室门外。
电缆隧道应安装强制通风装置,设置()。
辅助设施验收细则中,一次设备状态在线监测装置主要包括(____)装置。
根据《辅助设施验收细则》,水喷淋装置末端试验装置应满足()。
关于充电装置规定,说法正确的是()。
充电装置交流电源故障的现象有()。
站用直流电源系统竣工(预)验收标准卡中,蓄电池检查验收的电气绝缘性能试验验收标准
站用直流电源系统竣工(预)验收标准卡中,充电装置检查验收的控制程序试验验收标准为
随机试题
44.旅游乘数是指外来旅游者的消费支出在旅游目的地经济系统中导致的 ()变化
以下公司债券不可以上市交易的是: A.公司的净资产为2000万元 B.债券的
下列货币当局资产负债项目中,属于负债项目的有()。
以下哪些人群不具备开展介入放射学工作的资质
职位信息网描述的职位内容主要包括( )。
男性,25岁。突发呼吸困难,发作前鼻痒、喷嚏、流涕、干咳。体检:血压正常,端坐呼吸、唇轻度发绀,双肺有哮鸣音,心率116次/分,律齐,无杂音。血常规正常。...
气体灭火系统设计中,一个组合分配系统所保护的防护区不应超过( )个。A.4B.6C.8D.10
不符合药品批发企业药品质量验收要求的是A.应当对抽样药品的外观、包装、标签、说明书以及相关的证明文件等逐一进行检查、核对B.零货、拼箱的,应当开箱检查至最小包
某法律援助机构实施法律援助的下列做法,哪一项是正确的?A:经审查后指派律师担任甲的代理人,并根据甲的经济情况免除其80%的律师服务费B:指派律师担任乙的辩护人
基础货币与货币供应量之间存在等量关系。()