首页
财务会计
医药卫生
金融经济
考公考编
外语考试
学历提升
职称考试
建筑工程
IT考试
其他
登录
财务会计
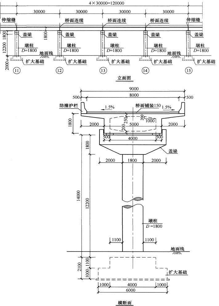
某城市快速路上的一座立交匝道桥,其中一段为四孔各30m的简支梁桥,其总体布置如图
某城市快速路上的一座立交匝道桥,其中一段为四孔各30m的简支梁桥,其总体布置如图
tikufree
2019-12-17
8
问题
某城市快速路上的一座立交匝道桥,其中一段为四孔各30m的简支梁桥,其总体布置如图7-1所示。单向双车道,桥梁总宽9.0m,其中行车道净宽度为8.0m。上部结构采用预应力混凝土箱梁(桥面连续),桥墩由扩大基础上的钢筋混凝土圆柱墩身及带悬臂的盖梁组成。梁体混凝土线膨胀系数取α=0.00001。设计荷载:城-A级。
该桥主梁的计算跨径为29.4m,冲击系数的μ=0.25。试问,该桥主梁支点截面在城-A级汽车荷载作用下的剪力标准值(kN)与下列何项数值最为接近?( )提示:不考虑活载横向不均匀因素。
选项
A.620B.990C.1090D.1220
答案
D
解析
[img]/upload/tiku/213/9405333_1.png[/img]
转载请注明原文地址:https://ti.zuoweng.com/ti/UMt9KKKQ
相关试题推荐
城市桥梁工程采用的主要材料、半成品、成品、构配件、器具和设备()。
城市主干道的水泥混凝土路面不宜选择的主要原材料是()。
城市快速路、主干路路床顶面以下0~300mm范围内,采用重型击实标准,土的压实度
城市建设工程档案应分专业按单位工程组卷,分为()和竣工验收文件分类组卷
关于城市热力管道工程沟槽开挖质量的说法,符合规范的有()。
城市(镇)供水工程(含中水工程)包括()的建设与维修工程。
城市桥梁工程包括()的建设、养护与维修工程。
城市燃气工程不包括()的建设与维修。
下列关于城市桥梁施工过程中分项工程质量控制的说法,错误的是()。
我国城市燃气管道按输气压力来分,高压B燃气管道压力为()。
随机试题
急性血源性骨髓炎的治疗措施中下列哪项是不正确的 A.全身支持疗法 B.早期联
从所给的四个选项中,选择最合适的一个填入问号处,使之呈现一定的规律性:
迎香穴的主治有
血清抗体滴度资料最常以 A算术均数表示其平均水平B中位数表示其平均水平C几
信贷经营中,对区域风险影响最大、最直接的因素为( )。A.区域自然条件B.区域市场化程度与法制框架C.区域产业结构D.区域经济发展水平
泌尿系统结核的最主要治疗方法是A.肾切除术B.抗结核药物治疗C.肾造瘘术D.膀胱扩大术
最容易发生损伤性骨化的部位是A.膝关节B.肘关节C.前臂D.上臂E.大腿
患者男,45岁。突发寒战,高热,右上腹痛,体温39~40℃,为弛张热,肝大,右上腹触痛伴肌紧张,白细胞增多,核左移,胸腹部透视:右隔肌升高,运动受限。超声...
增加血栓形成风险的药物是A.碘和碘化物B.丙硫氧嘧啶C.左甲状腺素D.胰岛素E.左炔诺孕酮
关于二灰稳定土的说法,正确的是()。A.抗冻性能比石灰土低B.粉煤灰用量越多早期强度越高C.收缩性大于水泥土和石灰土D.被禁止用于高等级路面的基层