首页
财务会计
医药卫生
金融经济
考公考编
外语考试
学历提升
职称考试
建筑工程
IT考试
其他
登录
考公考编
非抗震设防区某四层教学楼局部平面如图2-12所示。各层平面布置相同,各层层高均为
非抗震设防区某四层教学楼局部平面如图2-12所示。各层平面布置相同,各层层高均为
tikufree
2020-05-20
6
问题
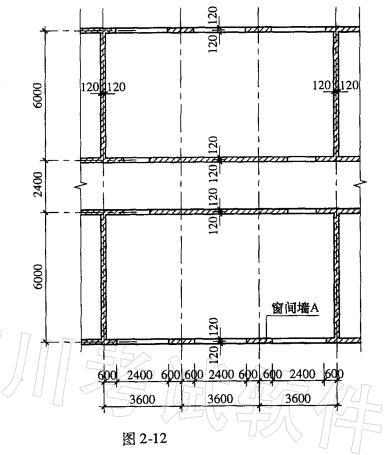
非抗震设防区某四层教学楼局部平面如图2-12所示。各层平面布置相同,各层层高均为3.6m。楼、屋盖均为现浇钢筋混凝土板,静力计算方案为刚性方案。墙体为网状配筋砖砌体,采用MU10级烧结普通砖,M10级水泥砂浆砌筑,钢筋网采用乙级冷拔低碳钢丝Фb4焊接而成(fy=320N/mm2),方格钢筋网间距为40mm,网的竖向间距130mm。纵横墙厚度均为240mm,砌体施工质量控制等级为B级。第二层窗间墙A的轴向力偏心距e=24mm。
假定,墙体体积配筋百分率ρ=0.6。试问,第二层窗间墙A的受压承载力设计值(kN)与下列何项数值最为接近?提示:窗间墙A的承载力影响系数为(A)1250ψn (B)1150ψn(C)1050ψn (D)950ψn
选项
答案
B
解析
答案:(B)[img]/upload/tiku/133/297379_1.jpg[/img]
转载请注明原文地址:https://ti.zuoweng.com/ti/gpnEKKKQ
相关试题推荐
如图5-11所示桁架,在节点C处沿水平方向受力F作用。各杆的抗拉刚度相等。若结点
电路如图7-31(a)所示,已知R1=1OΩ,R2=20Ω,uC(0-)=0,电
曲线y=sinx(0≤x≤π/2)与直线x=π/2,y=0围成的平面图形绕x轴旋
直角刚杆OAB可绕固定轴O在图示平面内转动,己知OA=40cm,AB=30
如图6-26所示,四孔口,其流量系数由大到小的排列为()。
基本门如图7-61(a)所示,其中,数字信号A由图7-61(b)给出,那么,输出
突然扩大管如图6-23所示,放大前后管路直径分别为100mm和200mm,放大后
带有不平行两槽的矩形平板上作用一力偶M,如图4-16所示。今在槽内插入两个固定于
如图6-7所示,1、2两种液体,上下分层,测压管1、2中的液面关系是()。
某模拟信号放大器输入与输出之间的关系如图9-5所示,那么,能够经该放大器得到5倍
随机试题
阳阳是个追求完美的学生,经常起早贪黑的学习,浏览各种图书,希望在学习上保持优势,
下列关于内部招聘的说法,正确的有()。
对于需要实施旁站监理的施工关键部位、关键工序,施工企业应在进行施工前()小时,书
2012年1月2日20时许,在A县发生了一起交通逃逸事故。事故发生后,人县公安局
符合肺炎支原件肺炎表现的是() A.X线胸片见呈段、叶分布的淡薄而均匀影 B
()是客户存款时不约定存期,可随时到银行提取,利率随存期长短而变化,兼有定期和活期两种性质的一种储蓄存款。A.活期储蓄B.定期储蓄C.定活两便储蓄D.
消防车登高操作场地靠建筑外墙一侧的边缘距离建筑外墙不大于()。A:3mB:5mC:8mD:10m
国家药典收载的处方是A.经方B.时方C.秘方D.法定处方E.协定处方
细菌繁殖数与死亡数大致相等细菌处于生长曲线的不同时期具有不同的特点A.迟缓期B.对数期C.黑暗期D.稳定期E.衰亡期