首页
财务会计
医药卫生
金融经济
考公考编
外语考试
学历提升
职称考试
建筑工程
IT考试
其他
登录
财务会计
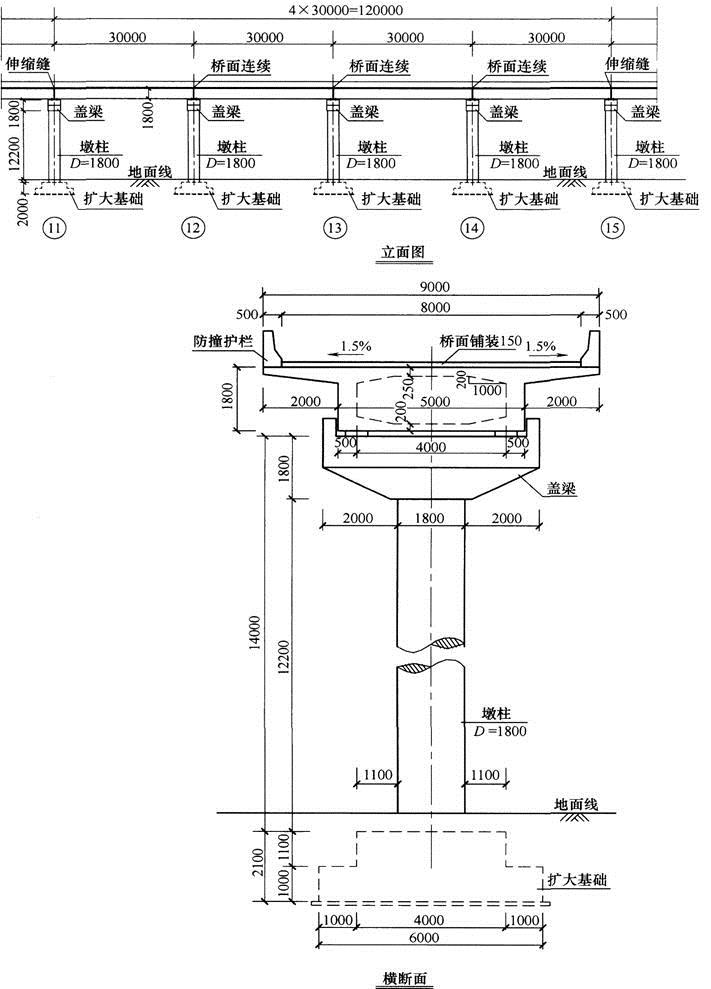
某城市快速路上的一座立交匝道桥,其中一段为四孔各30m的简支梁桥,其总体布置如图
某城市快速路上的一座立交匝道桥,其中一段为四孔各30m的简支梁桥,其总体布置如图
Freeti
2019-12-17
7
问题
某城市快速路上的一座立交匝道桥,其中一段为四孔各30m的简支梁桥,其总体布置如图7-1所示。单向双车道,桥梁总宽9.0m,其中行车道净宽度为8.0m。上部结构采用预应力混凝土箱梁(桥面连续),桥墩由扩大基础上的钢筋混凝土圆柱墩身及带悬臂的盖梁组成。梁体混凝土线膨胀系数取α=0.00001。设计荷载:城-A级。
试问,当城-A级车辆荷载的最重轴(4号轴)作用在该桥箱梁悬臂板上时,其垂直于悬臂板跨径方向的车轮荷载分布宽度(m)与下列何项数值最为接近?( )
选项
A.0.55B.3.45C.4.65D.4.80
答案
B
解析
根据《城市桥梁设计规范》(CJJ 11—2011)第10.0.2条第4款规定,计算箱梁悬臂板上的车辆荷载布置见题35解图所示。[img]/upload/tiku/213/9405335_1.png[/img]
转载请注明原文地址:https://ti.zuoweng.com/ti/tMt9KKKQ
相关试题推荐
城市快速路、主干路路床顶面以下0~300mm范围内,采用重型击实标准,土的压实度
城市建设工程档案应分专业按单位工程组卷,分为()和竣工验收文件分类组卷
城市热力管道对口质量应检验()。
城市公共广场工程包括()的建设与维修工程。
城市(镇)供水工程(含中水工程)包括()的建设与维修工程。
城市桥梁工程包括()的建设、养护与维修工程。
城市建设工程档案应分专业按()组卷。
下列关于城市桥梁施工过程中分项工程质量控制的说法,错误的是()。
根据GB50092-96规定,城市道路沥青混合料路面抗滑表层还应检查()。
我国城市燃气管道按输气压力来分,高压B燃气管道压力为()。
随机试题
对颧骨颧弓复合体骨折采用 A.口内切开复位固定 B.保守治疗 C.冠状切口
关于供货方代运货物的说法不正确的是( )。 A、采购方在站场提货地点应与运输部
交易员的职责,不包括()。
水的硬度用下列哪项(mg/L)表示( ) A.CaO B. C. D
上市公司公开发行股票,以下构成障碍的有( )
莱姆病,像许多其它的人兽共患病一样.是由通过吸食脊椎动物类宿主血液从而携带病原体
普规规定:集中联锁设备应保证:当道岔区段有车占用时,该区段的道岔不能转换。
下列哪些不是新股网上竞价发行方式的缺陷()。 Ⅰ.增加发行组织工作压力,增加许多环节,消耗大量人力、物力和财力资源 Ⅱ.股份容易被机构大资金操纵,增...
甘露醇A.属解热镇痛药B.属抗抑郁药C.属脱水药D.属抗过敏药E.属止血药
MarchMadness Fortherestofthemonth,anepidemic(流行病)willsweepacros...