首页
财务会计
医药卫生
金融经济
考公考编
外语考试
学历提升
职称考试
建筑工程
IT考试
其他
登录
财务会计
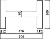
一钢筋混凝土单层工业厂房边柱,下柱为工字形截面,截面尺寸如图所示,下柱高为7.2
一钢筋混凝土单层工业厂房边柱,下柱为工字形截面,截面尺寸如图所示,下柱高为7.2
书海库
2019-12-17
8
问题
一钢筋混凝土单层工业厂房边柱,下柱为工字形截面,截面尺寸如图所示,下柱高为7.2m,柱截面控制内力M=592kN·m,N=467kN,混凝土强度等级为C30,钢筋用HRB335级。
2.采用对称配筋,钢筋截面面积As=As′最接近于( )mm2。
选项
A.2495 B.3126 C.3212 D.3806
答案
A
解析
根据《混凝土结构设计规范》(GB 50010—2010)第6.2.17条式(6.2.17-1)计算,受压区高度为:[img]/upload/tiku/213/9403864_1.jpg[/img][img]/upload/tiku/213/9403864_1_1.jpg[/img]属大偏心受压;轴向压力作用点到受拉钢筋合力点的距离为e=ei+h/2-as=1601mm,故采用对称配筋时,钢筋截面面积为:[img]/upload/tiku/213/9403864_1_2.png[/img]由此可知,A项数值最为接近。
转载请注明原文地址:https://ti.zuoweng.com/ti/72q9KKKQ
相关试题推荐
工程测量记录是在施工过程中形成的确保建设工程定位、尺寸、标高、位置和沉降量等满足
按照归档文件的质量要求,竣工图章尺寸为()。
施工文件立卷时,案卷卷盒的外表尺寸为()。
按照文明工地标准,严格按照相关文件规定的尺寸和规格制作各类工程标志牌,“五牌一图
某一结构构件截面尺寸不足,影响承载力,但按实际情况进行复核验算后仍能满足设计要求
某钢筋混凝土工程施工过程中,由于工人不按施工操作规程进行振捣导致混凝土密实度达不
某工程进行检验批验收付时,发现某框架梁截面尺寸与原设计图纸尺寸不符,但经原设计单
某建设工程的施工网络计划如图所示(时间单位:天),则该计划的关键线路有()。
某双代号网络计划如图所示(时间单位:d),则该计划的关键线路是()。
某工程双代号网络计划图如图所示(时间单位:天),则该计划的关键线路是()。
随机试题
胃肠道功能健全的患者最适宜下列哪种营养治疗方式?( ) A、中央静脉营养
关于流产,以下哪项不恰当 A.有先兆流产症状并非阴道检查的禁忌 B.是指12
(32-34题共用题干) 男性,20岁。腹部钝性伤术后5天,出现高位小肠瘘,每
根据公司法律制度的规定,公司不得收购本公司的股份,但是()的情形除外。
下列基础设备中,适用于有强烈振动和冲击的重型设备的是()。
( )是我国对证券投资基金的一种本土化创新。
()是员工所获得的全部有形报酬,包括薪资、奖金等项目的总和。 A.收入
嵌入型脱位多见于
替牙期上颌骨发育不足常用的矫治器A.双板矫治器B.头帽颏兜C.固定矫治器D.上颌垫式矫治器E.面罩上颌前牵引
A公司为上市公司,2×18年1月1日,公司向其100名管理人员每人授予1万份股票期权,根据股份支付协议规定,这些职员从2×18年1月1日起在该公司连续服务...