首页
财务会计
医药卫生
金融经济
考公考编
外语考试
学历提升
职称考试
建筑工程
IT考试
其他
登录
财务会计
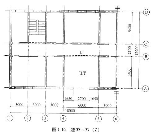
某多层砖砌体房屋,底层结构平面布置如图1-16所示,外墙厚370mm,内墙厚24
某多层砖砌体房屋,底层结构平面布置如图1-16所示,外墙厚370mm,内墙厚24
恬恬
2019-12-17
3
问题
某多层砖砌体房屋,底层结构平面布置如图1-16所示,外墙厚370mm,内墙厚240mm,轴线均居墙中。窗洞口尺寸均为1500mm×1500mm(宽×高),门洞口尺寸除注明外均为1000mm×2400mm(宽×高)。室内外高差0.5m,室外地面距基础顶0.7m。楼、屋面板采用现浇钢筋混凝土板,砌体施工质量控制等级为B级。
假定,墙体采用MU15级蒸压灰砂砖、M10级混合砂浆砌筑,底层层高为3.6m。试问,底层②轴楼梯间横墙轴心受压承载力ψfA中的ψ值与下列何项数值最为接近?提示:横墙间距s=5.4m。(A)0.62 (B)0.67 (C)0.73 (D)0.80
选项
答案
C
解析
解答:根据《砌规》第5.1.3条,构件高度H=3.6+0.5+0.7=4.8m横墙间距s=5.4m>H且<2H=9.6m由《砌规》第4.2.1条,s<32m,刚性方案,根据《砌规》表5.1.3,计算高度H0=0.4s+0.2H=0.4×5.4+0.2×4.8=3.12m[img]/upload/tiku/213/2643924_1.jpg[/img]
转载请注明原文地址:https://ti.zuoweng.com/ti/C7ANKKKQ
相关试题推荐
黄铜不是金子,黄铜是闪光的,所以有些闪光的不是金子。下述哪个推理的结构与上述推理
影响各级各类学校在教育结构中所占比例的因素是()。 A.人口的地域分布
人口的职业结构制约着教育的()。 A.专业结构B.布局结构C.经济基础
建立学生自主性探索学习基础上的课程,具体结构以单元的形式最为适宜,每一单元至少包
课程管理有审定制、固定制和多样化自由选择几种模式,统整各自优势,课程一般结构发生
主张学习的目的在于发现学习的方式,使学科的基本结构转变为学生头脑中的认知结构的心
反映一个国家配合政治、经济、科技体制而确定下来的学校办学形式、层次结构、组织管理
杜威的课程设计教学模式的结构是()。 A.诱导学习动机→领会新教材→巩固
课堂情境结构包括班级规模的控制、课堂常规的建立和()。 A.学生的学习方式
()是教师知识结构的核心。 A.专业知识B.教育学知识C.心理学知识D
随机试题
石油产品利用铁路装卸完毕后,需静止至少()后,再进行计量等作业。 A.1min
丝虫病病人的尿液可能为 A、血尿 B、胆红素尿 C、蛋白尿 D、乳
下列关于各种筹资方式的表述中,错误的有()。 A.普通股筹资没有固定的利息
下列指标的计算公式中,正确的是()。
案例四: 一般资料:李某,男性,26岁,无业。 案例介绍:李某在母亲部同下前
面层混凝土板通常分为()。
申请人体器官移植手术患者排序原则 A应当符合医疗需要,统一领导、集中管理的原
三仁汤和八正散均有的药物是A.木通B.苍术C.白术D.滑石E.厚朴
张某及其周围的住户均收到N市残疾儿童救助会寄来的希望征集治疗残疾儿童的捐款的信件。经了解,N市残疾儿童救'助会是通过向张某等人所在市一家速递公司购...
()又称为“店外市场”。它是靠交易会委员直接从事大宗上市股票交易而形成的市场。A:柜台市场B:第三市场C:第一市场D:第二市场