首页
财务会计
医药卫生
金融经济
考公考编
外语考试
学历提升
职称考试
建筑工程
IT考试
其他
登录
财务会计
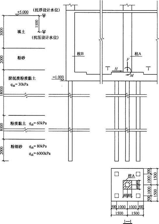
某商业楼为五层框架结构,设一层地下室,基础拟采用承台下桩基,柱A截面尺寸为800
某商业楼为五层框架结构,设一层地下室,基础拟采用承台下桩基,柱A截面尺寸为800
Loveyou
2019-12-17
3
问题
某商业楼为五层框架结构,设一层地下室,基础拟采用承台下桩基,柱A截面尺寸为800mm×800mm,预制方桩边长为350mm,桩长为27m,承台厚度为800mm,有效高度h0取750mm,板厚为600mm,承台及柱的混凝土强度等级均为C30(ft=1.43N/mm2),抗浮设计水位+5.000,抗压设计水位+3.500。柱A下基础剖面及地质情况见图。[2013年真题]提示:根据《建筑地基基础设计规范》(GB 50007—2011)作答,根据《建筑桩基技术规范》(JGJ 94—2008)作答。
5.条件同(4)。试问,承台受柱A冲切时,作用于承台冲切破坏锥体上的冲切力设计值(kN)与下列何项数值最为接近?( )提示:①不考虑冲切破坏锥体底面浮力作用;②不考虑柱根弯矩的影响。
选项
A、4800 B、5000 C、5800 D、6000
答案
A
解析
根据《建筑桩基技术规范》(JGJ 94—2008)第5.9.7条规定,作用于承台冲切破坏锥体上的冲切力和剪力有关,公式为:[img]/upload/tiku/214/9406715_1.png[/img]代入数据可得作用于承台冲切破坏锥体上的冲切力设计值为:[img]/upload/tiku/214/9406715_1_1.png[/img]由此可知,A项数值最为接近。
转载请注明原文地址:https://ti.zuoweng.com/ti/Hot9KKKQ
相关试题推荐
根据《水工建筑物岩石基础开挖工程施工技术规范》(SL47-94),严禁在设计建
施工完成后形成复合地基的基础是()。
可以改善岩基的力学性能,减少基础的变形和不均匀沉陷的灌浆方法是()。
根据《水工建筑物岩石基础开挖工程施工技术规范》SL47-94,在设计建基面、设
单元工程或工序质量经鉴定达不到设计要求,经加固补强后,改变外形尺寸或造成永久性缺
根据房屋建筑工程和市政基础设施工程竣工验收合格后进行备案的规定,工程质量监督机构
经返修或加固处理的分项工程、分部工程,虽然改变外形尺寸但仍能满足()要求,可按
对不同级别、不同熔体流动速率的聚乙烯原料制造的管材或管件,不同标准尺寸比(SDR
季度施工进度计划是在年度施工进度计划的基础上,按照()施工原则编制。
钢筋网材料宜采用Q235钢,钢筋直径宜为6~12mm,网格尺寸宜采用(),搭接
随机试题
投保人不得为无民事行为能力人投保以死亡为给付保险金条件的人身保险,但下列选项中不
确诊流脑的主要依据是 A.脑脊液呈化脓性 B.血清特异性抗体检测阳性 C.
关于病案科的职责与功能,下列叙述正确的是()。 A.贯彻执行国家有关法律法规及
女,65岁,咳嗽、痰中带血,胸痛两个月,无明显发热。胸片发现。右下肺周边有一直径
患者男性,21岁,3天前受凉后出现咽痛、发热,来医院查血常规示:白细胞38.3×
属于和解剂的药物有( ) A.痛泻要方 B.甘露消毒丹 C.普济消毒饮
投资部经理:公司2018年完成增资发行后,资金充裕,可以同时投资多个项目。为保持公司技术领先优势,需加大技术项目投资。现有A、B两个投资项目可供选择,加权...
下列对统计变量阐述有误的是()。A、统计量是统计理论中用来对数据进行分析、检验的变量B、宏观是旱大量微观量的统计平均值,具有统计平均的意义,对于单个微观粒子
在3~IOkV配电系统中,可不装设阀式避雷器而采用击穿熔断器保护措施的是()。A.配电系统中的配电变压器;B.低压侧中性点不接地的配电变压器的中性点;C.柱
关系到居室内空气清洁,便于人们放置家具摆设,有足够的活动范围,避免过分拥挤和减少传染病的传播机会的一项重要的居室规模指标是( )A.居室容积B.居室面积C