首页
财务会计
医药卫生
金融经济
考公考编
外语考试
学历提升
职称考试
建筑工程
IT考试
其他
登录
财务会计
有一建造于Ⅱ类场地上的钢筋混凝土多层框架,抗震等级为二级,其中某柱的轴压比为0.
有一建造于Ⅱ类场地上的钢筋混凝土多层框架,抗震等级为二级,其中某柱的轴压比为0.
shuhaiku
2019-12-17
13
问题
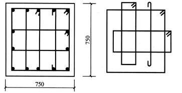
有一建造于Ⅱ类场地上的钢筋混凝土多层框架,抗震等级为二级,其中某柱的轴压比为0.7,混凝土强度等级为C30,箍筋采用HPB235,保护层厚度取25mm,剪跨比为2.1,柱断面尺寸及配筋形式如图所示。
下列箍筋的配筋,最接近于加密区最小体积配箍率要求的是?( )
选项
答案
D
解析
根据《混凝土结构设计规范》(GB 50010—2010)表11.4.17,二级,复合箍,轴压比=0.7,查得加密区最小配箍特征值[img]/upload/tiku/214/5344604_1.jpg[/img]
转载请注明原文地址:https://ti.zuoweng.com/ti/lEolKKKQ
相关试题推荐
2013年8月3日,同德公司取得一块土地的建设用地使用权,并在该土地上合法建造了
下列资料属等级资料的是( )。
预制梁均应设置桥牌,桥牌应标明:跨度、活载等级、设计图号、梁号、( )、许可证
在我国社会主义初级阶级,社会主义集体主义道德原则具有多层次的道德要求。其中最基本
现代企业是一个多层次、多目标的系统,这个系统的流程包括()。
变配电所的低压配电室和低压电容器室的耐火等级不应低于(),屋顶承重构件应
变配电所的高压配电室、高压电容器室和非燃(或难燃)介质的电力变压器室的耐火等级不
110kV电压等级,双母线接线,当采用管型母线配双柱式隔离开关时,屋内敞开式配电
电缆群敷设在同一通道中位于同侧的多层支架上配置,应符合()。
在电动机的绝缘等级选择方面,以下原则正确的有()。
随机试题
急性肾炎与急进性肾小球肾炎临床相似之处为 A.预后欠佳 B.中度贫血 C.
个人公积金住房贷款中,贷款银行主要的合作机构为()。
依据《使用有毒物品作业场所劳动保护条例》,下列使用高毒物品作业的用人单位对高毒物
下列各项,不属于带脉失约导致的疾病是
1937年10月,八路军驻新疆办事处建立,()任八路军驻新疆代表。 A.周小
下列关于应收票据的含义和内容,正确的有()。
施工合同交底的主要目的和任务有()。 A.将各种合同事件的责任分解落实到各工
结合实例分析一下提高问题解决能力的教学策略。
一个酒吧正在播放英格兰与巴西的足球比赛,在场的所有女生都是英格兰球迷,所有调酒师都是巴西球迷,所有穿球迷衣服的都是男生,所以,所有的调酒师都是男生。 下...
女,30岁。低热伴关节肿痛3个月,轻度贫血,抗核抗体(+),抗双链DNA抗体(+),疑患系统性红斑狼疮,治疗首选的药物是A.非甾体抗炎药B.抗生素C.免疫抑