首页
财务会计
医药卫生
金融经济
考公考编
外语考试
学历提升
职称考试
建筑工程
IT考试
其他
登录
财务会计
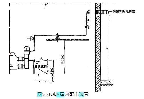
图5-7为1OkV屋内配电装置,安装地的海拔髙度不超过 1000m,请按最小电气
图5-7为1OkV屋内配电装置,安装地的海拔髙度不超过 1000m,请按最小电气
Loveyou
2019-12-17
82
问题
图5-7为1OkV屋内配电装置,安装地的海拔髙度不超过 1000m,请按最小电气安全净距的要求,分别回答下列问题(以mm为单位):
若将图中的栅状遮栏改为网孔不大于40mmX40mm的网状遮栏,则图5-7中所示 标示的B1值是( )。(屋内施工误差30mm)
选项
A. 200mm; B. 225mm; C 195mm; D. 180mm.
答案
B
解析
依据GB 50056-1992《3~IlOkV高压配电装置设计规范》第5.1. 3条。
转载请注明原文地址:https://ti.zuoweng.com/ti/tJM9KKKQ
相关试题推荐
每年应定期对变电运维人员进行培训工作,使其熟练掌握防误装置,做到“四懂三会”。四
铁心接地电流检测装置中钳形电流表具备(____)。
防误闭锁装置图纸资料的验收包括:()的核对验收。
一次设备状态在线监测装置主要包括()装置。
变电站()、开关室(有保护装置)应装设空调,蓄电池室应使用防爆空调。
消弧线圈装置参数设定后应作记录,记录()等,以便分析、查询。
辅助设施验收细则中,一次设备状态在线监测装置主要包括(____)装置。
土建设施验收细则中,要求设置通风装置的房间包括(____)。
所有变电站均应安装实体防护装置,电子脉冲围栏应具备()功能,围栏应安装警示牌、警
站用直流电源系统竣工(预)验收标准卡中,充电装置检查验收的控制程序试验验收标准为
随机试题
立井井筒基岩永久支护有多种,目前应用最多的是()。 A.料石井壁 B.混凝土
为预防死亡风险,在养老金的支付方式上可以采取的措施主要包括( )。Ⅰ.靠利息收
根据《合同法》的规定,当事人既约定违约金,又约定定金的,一方违约时,对方( )
应当公开招标的建设工程项目出现下列情形时,经批准可以进行邀请招标的是( )。
麻杏甘石汤原方中麻黄与甘草的用量比例是
全口义齿的缓冲区不包括()A.切牙乳突区B.上颌硬区C.颧突区D.翼上颌切迹E.下颌舌骨嵴区
地陪送国内旅游团赴机场,通常应提前()抵达机场。A.半小时B.1小时C.一个半小时D.2小时
下列作者与作品对应不正确的是()。A.顾恺之——《女史箴图》B.阎立本——《历代帝王图》C.吴道子——《步辇图》D.赵孟頫——《秋郊饮马图》
依据法律形式来界定,目前我国的证券投资基金() A、都是契约型基金 B、都是公司型基金 C、大部分为公司型基金 D、大部分为契约型基金
共用题干 一般资料:求助者,女性,32岁,机关公务员。案例介绍:求助者主述,半年前发现丈夫手机里有暧昧的短信.,她非常震惊,从没想到过丈夫会出轨。她对家...